Discover postsExplore captivating content and diverse perspectives on our Discover page. Uncover fresh ideas and engage in meaningful conversations
The Ghost Wizz Bundle Promo (Pack of 3 offers an incredible value for vape enthusiasts. This bundle includes 30 high-quality disposable vapes, featuring a variety of exciting flavors. Each vape is designed for convenience and ease of use, with no need for refills or charging. Perfect for those who want to stock up on their favorite flavors, this pack ensures you have a long-lasting and enjoyable vaping experience. Ideal for both casual vapers and regular users, it’s a must-have deal!
https://clickandvape.co.uk/pro....dle-promo-pack-of-30
Need a trusted plumber in Mount Cotton? Moyle Plumbing & Gasfitting offers expert services, including blocked drains, hot water repairs, leak detection, and gas fitting. With over 40 years of experience, we provide fast, reliable, and affordable plumbing solutions. visit us today for top-quality service!
https://www.moyleplumbing.com.....plumber-mount-cotton
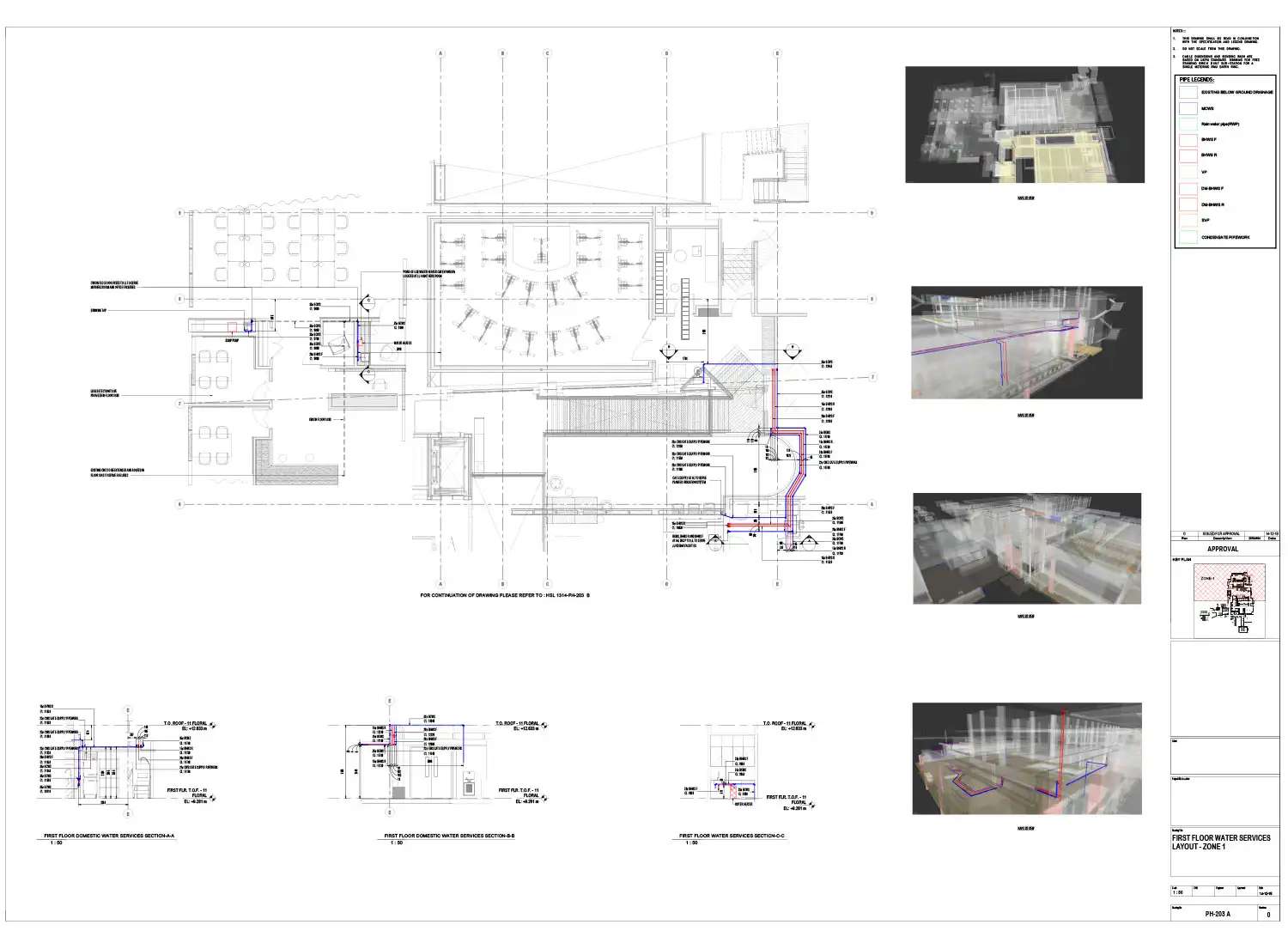
MEP Installation Drawings Samples - Precise MEP Installation Drawings
Tesla Outsourcing Services provides expertly designed MEP installation drawings that help your project run smoothly. Our team ensures that every mechanical, electrical, and plumbing system is properly mapped out, minimizing the chance of mistakes during installation. With years of experience, we deliver detailed, precise drawings tailored to your needs. Let us help you save time, reduce errors, and achieve the best results in your construction projects.
Get in Touch: https://www.teslaoutsourcingse....drawings-samples.php
#mepdrawings #accuratedesign #engineeringservices
MEP Installation Drawings Samples - Precise MEP Installation Drawings
Tesla Outsourcing Services provides expertly designed MEP installation drawings that help your project run smoothly. Our team ensures that every mechanical, electrical, and plumbing system is properly mapped out, minimizing the chance of mistakes during installation. With years of experience, we deliver detailed, precise drawings tailored to your needs. Let us help you save time, reduce errors, and achieve the best results in your construction projects.
Get in Touch: https://www.teslaoutsourcingse....drawings-samples.php
#mepdrawings #accuratedesign #engineeringservices
MEP Installation Drawings Samples - Precise MEP Installation Drawings
Tesla Outsourcing Services provides expertly designed MEP installation drawings that help your project run smoothly. Our team ensures that every mechanical, electrical, and plumbing system is properly mapped out, minimizing the chance of mistakes during installation. With years of experience, we deliver detailed, precise drawings tailored to your needs. Let us help you save time, reduce errors, and achieve the best results in your construction projects.
Get in Touch: https://www.teslaoutsourcingse....drawings-samples.php
#mepdrawings #accuratedesign #engineeringservices
MEP Installation Drawings Samples - Precise MEP Installation Drawings
Tesla Outsourcing Services provides expertly designed MEP installation drawings that help your project run smoothly. Our team ensures that every mechanical, electrical, and plumbing system is properly mapped out, minimizing the chance of mistakes during installation. With years of experience, we deliver detailed, precise drawings tailored to your needs. Let us help you save time, reduce errors, and achieve the best results in your construction projects.
Get in Touch: https://www.teslaoutsourcingse....drawings-samples.php
#mepdrawings #accuratedesign #engineeringservices
MEP Installation Drawings Samples - Precise MEP Installation Drawings
Tesla Outsourcing Services provides expertly designed MEP installation drawings that help your project run smoothly. Our team ensures that every mechanical, electrical, and plumbing system is properly mapped out, minimizing the chance of mistakes during installation. With years of experience, we deliver detailed, precise drawings tailored to your needs. Let us help you save time, reduce errors, and achieve the best results in your construction projects.
Get in Touch: https://www.teslaoutsourcingse....drawings-samples.php
#mepdrawings #accuratedesign #engineeringservices
MEP Installation Drawings Samples - Precise MEP Installation Drawings
Tesla Outsourcing Services provides expertly designed MEP installation drawings that help your project run smoothly. Our team ensures that every mechanical, electrical, and plumbing system is properly mapped out, minimizing the chance of mistakes during installation. With years of experience, we deliver detailed, precise drawings tailored to your needs. Let us help you save time, reduce errors, and achieve the best results in your construction projects.
Get in Touch: https://www.teslaoutsourcingse....drawings-samples.php
#mepdrawings #accuratedesign #engineeringservices





Level 2 electrical service Newcastle
https://metricpower.com.au/level-2-electrician/
Need a Level 2 electrical service in Newcastle? Metric Power provides home and business customers with metering, power upgrades, and fault repairs performed by licensed ASP Level 2 electricians.
#level2electricalservicenewcastle